Rockport
Kits / Rockport
Rockport
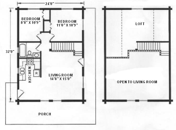
This cozy home is packed with great attributes. Floor to ceiling windows capture the warm rays of the winter sun. The loft, covered porch and deck are a few of the other attractions. Pull up a comfortable chair in front of the wood stove and enjoy cozy times with family members or friends.
Log and Timber Package
- 7″ $43,149
- 8″ $46,247
- 9″ $52,661
*Pricing subject to change without notice
- EXTERIOR LOG WALLS AND GABLE ENDS
- LOG STARTER / FINISH COURSE
- ROOF OVERHANG AND SPECIAL CUT LOGS AS NEEDED
- LOG OR TIMBER POSTS
- RIDGE BEAM
- ROUGH BEAM
- ROUGH SAWN D FIR RAFTERS
- BARGE RAFTERS
- ROUGH SAWN JOIST FOR 2ND LEVEL
- BEAMS FOR 2ND LEVEL
- R.S. DOOR AND WINDOW BUCKING
- PORCH POST BEAMS AND R.S. RAFTERS
- LOG STAIRCASE IF APPLICABLE
- MILLED HAND RAILING INTERIOR
- CAULKING FOR BUTT JOINT AND SADDLE NOTCH
- SPIKES AND ADHESIVE FOR LOG CONNECTION
- BLUEPRINTS AND ENGINEERING
- FREIGHT WITHIN 250 MILES OF CEDAR CITY, UTAH
All items in Log and Timber Package PLUS:
- MAIN FLOOR JOIST, BLOCKING AND RIM JOIST
- 3/4 OSB WAFER BOARD SUB FLOOR
- SILL SEAL, TERMITE SHIELD AND TREATED SILL BOARD
- INTERIOR WALL FRAMING 2X4 AND 2X6
- LOFT FLOORING 2X6 T&G
- ROOF TRUSSES, 2X6 OUTRIGGERS
- 2X6 T7G ROOF SHEATHING OR 5/8″ CDX PLY SHEATHING
- SPECIAL T STRAP FOR POST AND BEAM CONNECTOR AND RS JOIST HANGER
- EXTERIOR DOORS, SINGLE, FRENCH, OR SLIDING DEPENDING ON PLAN
- PORCH ROOF RAFTERS AND CDX SHEATHING
- EXTERIOR WINDOWS DUAL PANE VINYL (CHOICE OF COLORS)
- FIXED GLASS PANELS
- DORMER FRAMING MATERIAL
- DORMER TRUSSES AND BEAMS
- 1X6 T&G PANELING FOR EXTERIOR DORMER
- GARAGE DORR IF APPLICABLE
Shell Package
- 7″ $60,937
- 8″ $65,119
- 9″ $70,948
*Pricing subject to change without notice
Custom Homes
PHOTOS COMING SOON

